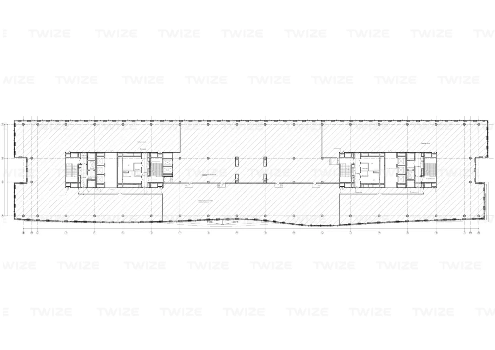
Обмерные чертежи трёх этажей бизнес‑центра

  • Выполняем заказы от 1 дня
  • Работаем с компаниями и физлицами
  • Собственное производство
  • Оказываем услуги по всему миру

Фотополимерная 3D‑печать от 80 ₽ за 1 см³

подробнее

Задача

Создать актуальные обмерные чертежи трех этажей бизнес‑центра, включая все видимые инженерные коммуникации, для проведения ремонтных отделочных работ.

Решение

Проведено 3D‑сканирование здания. По результатам сканирования сформировано облако точек здания со всеми элементами декора. Создан поэтажный план трех этажей бизнес центра с расположенными коммуникациями.

Есть похожая задача?

Отправьте нам детали вашего проекта любым удобным способом:

  • 1 этап

    3D‑cканирование

    3D‑сканер:

    Faro Focus S150

    Тип сканера:

    лазерный стационарный

    Габаритные размеры объекта 3D‑сканирования:

    17 500 м2

    Количество установок сканера:

    187 установок

    Используемое ПО:

    FARO SCENE

    Точность данных сканирования:

    5 мм

    Время сканирования:

    2 рабочих дня

    Результат 3D‑сканирования:

    облако точек трех этажей с установками сканера размещенными в единой системе координат

    Формат файла:

    .RCP

  • 2 этап

    Создание чертежа

    Используемое ПО:

    Autodesk AutoCAD

    Время работы:

    5 рабочих дней

    Результат работы:

    поэтажные планы трех этажей здания бизнес-центра

    Формат файла

    .DWG; .PDF

Готовы обсудить все ваши вопросы!

Заполните форму или позвоните по номеру +7 (495) 223 01 21

Заказать звонок