Обмерные чертежи для реконструкции коттеджа в г. Женева

  • Выполняем заказы от 1 дня
  • Работаем с компаниями и физлицами
  • Собственное производство
  • Оказываем услуги по всему миру

19 февраля приглашаем на вебинар «От идеи до взлета: практический опыт применения 3D‑технологий в авиации»

подробнее

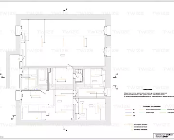
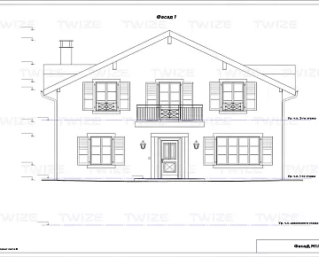
Задача

Сформировать поэтажные и фасадные планы коттеджа с коммуникациями.

Решение

Проведено 3D‑сканирование коттеджа (фасады, цокольный, первый и второй этажи). По результатам сканирования сформированы обмерочные чертежи в формате DWG.

Есть похожая задача?

Отправьте нам детали вашего проекта любым удобным способом:

  • 1 этап

    3D‑cканирование

    3D‑сканер:

    Faro Focus S150

    Тип сканера:

    лазерный стационарный

    Габаритные размеры объекта 3D‑сканирования:

    12000 х 16000 х 8500 мм

    Точность данных сканирования:

    3 мм

    Время сканирования:

    2 рабочих дня

    Результат 3D‑сканирования:

    облако точек коттеджа с установками сканера размещенными в единой системе координат

    Формат файла:

    RCP

  • 2 этап

    Создание обмерочных чертежей

    Используемое ПО:

    Autodesk AutoCAD

    Используемые данные:

    облако точек в формате STL

    Время на подготовку чертежей:

    15 рабочих дней

    Результат работы:

    поэтажные и фасадные планы коттеджа, включая видимые коммуникации

    Формат файла:

    PDF; DWG

Готовы обсудить все ваши вопросы!

Заполните форму или позвоните по номеру +7 (495) 223 01 21

Заказать звонок