Создание комплекта обмерных чертежей коттеджа в поселке «Миллениум Парк»

  • Выполняем заказы от 1 дня
  • Работаем с компаниями и физлицами
  • Собственное производство
  • Оказываем услуги по всему миру

Фотополимерная 3D‑печать от 80 ₽ за 1 см³

подробнее

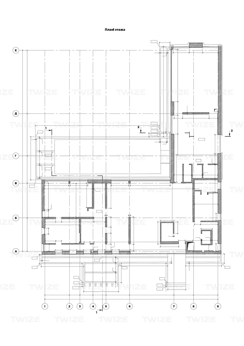
Задача

Подготовить поэтажные и фасадные планы коттеджа с формированием высотного плана территории.

Решение

Проведено 3D‑сканирование коттеджа (фасады, гараж, первый и второй этажи, территория). По результатам сканирования сформированы обмерочные чертежи в формате .DWG.

Есть похожая задача?

Отправьте нам детали вашего проекта любым удобным способом:

  • 1 этап

    3D‑сканирование

    3D‑сканер:

    Faro Focus S 150

    Тип сканера:

    лазерный стационарный

    Точность данных сканирования:

    3 мм

    Время сканирования:

    2 рабочих дня

    Габаритные размеры объекта 3D‑сканирования:

    28000 х 18000 х 10000 мм

    Результат 3D‑сканирования:

    облако точек коттеджа с установками сканера, размещенными в единой системе координат

    Формат файла:

    .RCP

  • 2 этап

    Создание обмерочных чертежей

    Используемое ПО:

    Autodesk AutoCAD

    Время на подготовку чертежей:

    15 рабочих дней

    Результат работы:

    поэтажные и фасадные планы коттеджа и гаража, включая высотный план территории

    Формат файла:

    .PDF; DWG

Готовы обсудить все ваши вопросы!

Заполните форму или позвоните по номеру +7 (495) 223 01 21

Заказать звонок