Обмеры фасада модного дома Dior

  • Выполняем заказы от 1 дня
  • Работаем с компаниями и физлицами
  • Собственное производство
  • Оказываем услуги по всему миру

Фотополимерная 3D‑печать от 80 ₽ за 1 см³

подробнее

Задача

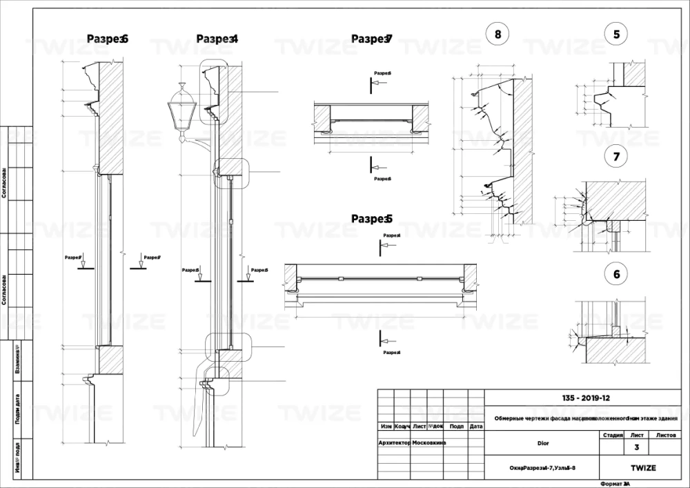
Выполнить обмерные работы для реставрации фасада здания методом 3D-сканирования. Зафиксировать все элементы декора фасада с цветовыми решениями.

Решение

Проведено 3D‑сканирование здания. По результатам сканирования сформировано облако точек здания со всеми элементами декора. Создан чертеж фасада с разверткой стен и размерами элементов декора с их расположением. Выделен участок фасада с облицовочным камнем с преобразованием облака в полигональную 3D‑модель. На основании полигональной 3D‑модели создана твердотельную модель облицовочного камня со ступеньками входов для дальнейшего его распила под размер.

Есть похожая задача?

Отправьте нам детали вашего проекта любым удобным способом:

  • 1 этап

    3D‑сканирование

    3D‑сканер:

    Faro Focus S150

    Тип сканера:

    лазерный стационарный

    Габаритные размеры объекта 3D‑сканирования:

    31000 х 47000 х 8500 мм

    Количество установок сканера:

    21 установка

    Используемое ПО:

    FARO SCENE

    Точность данных сканирования:

    3 мм

    Время сканирования:

    4 часа

    Результат сканирования:

    облако точек фасада здания

    Формат файла:

    .RCP

  • 2 этап

    Создание комплекта чертежей

    Используемое ПО:

    Autodesk AutoCAD

    Время работы:

    5 рабочих дней

    Результат работы:

    чертежи фасадов с нанесенными размерами и месторасположения элементов декора

    Формат файла:

    .DWG; .PDF

  • 3 этап

    Создание полигональной 3D‑модели облицовочного камня

    Используемое ПО:

    Geomagic WRAP и Geomagic Design X

    Время работы:

    1 рабочий день

    Результат работы:

    полигональная 3D‑модель облицовочного камня

    Формат файла:

    .STL

  • 4 этап

    Создание твердотельной 3D‑модели облицовочного камня

    Используемое ПО:

    Geomagic Design X

    Время работы:

    3 рабочих дня

    Результат работы:

    CAD‑модель облицовочного камня

    Формат файла:

    .STP; .IGS; .DWG.STL

Готовы обсудить все ваши вопросы!

Заполните форму или позвоните по номеру +7 (495) 223 01 21

Заказать звонок