Контроль параллельности стен

  • Выполняем заказы от 1 дня
  • Работаем с компаниями и физлицами
  • Собственное производство
  • Оказываем услуги по всему миру

19 февраля приглашаем на вебинар «От идеи до взлета: практический опыт применения 3D‑технологий в авиации»

подробнее

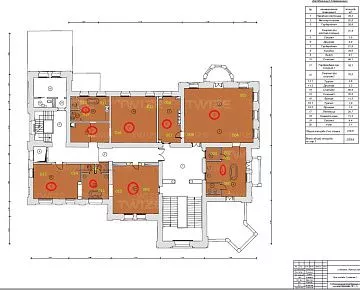
Задача

Перед специалистами нашей компании стояла задача провести контроль параллельности и перпендикулярности потолка и пола относительно стен с оконными проемами в 16 помещениях.

Решение

Использован для замеров 3D‑сканер и специализированное программное обеспечение.

Есть похожая задача?

Отправьте нам детали вашего проекта любым удобным способом:

  • 1 этап

    3D‑cканирование

    3D‑сканер:

    Surphaser 25HSX

    Тип сканера:

    лазерный дальномер

    Результат 3D‑сканирования:

    3D‑модель помещений в виде облака точек.

    Габаритные размеры объекта 3D‑сканирования:

    средний размер 1 помещения составляет 20 м2

    Точность данных сканирования:

    200 микрон на 10 метров расстояния

    Время сканирования:

    1 рабочий день

    Формат файла:

    .RCP

  • 2 этап

    3D‑моделирование

    Используемое ПО:

    Geomagic ControlX

    Используемые данные:

    результаты сканирования помещений

    Время анализа отклонений:

    1 рабочий день

    Результат работы:

    отчет отклонений стен согласно ТЗ в виде замера углов по созданным плоскостям.

    Формат файла:

    .PDF

Готовы обсудить все ваши вопросы!

Заполните форму или позвоните по номеру +7 (495) 223 01 21

Заказать звонок